Sales office is open by appointment only with Gainsborough DDM from Monday to Friday, 10:00am to 5:00pm.
About
Homes
Contact

THIS DEVELOPMENT IS NOW FULLY RESERVED

TUDOR REACH

This site is now fully reserved.

Tudor Reach, a charming development of modern, energy-efficient homes in Kirton-in-Lindsey, Lincolnshire. Designed for a range of buyers, from first-time homeowners to families and remote workers, these homes offer the perfect blend of peaceful countryside living and modern convenience.

Read more

Station Road, Kirton-in-Lindsey, Gainsborough, Lincolnshire, DN21 4BD

What3Words Icon what3words: coast.items.imprints

Interested in this development?

Requesting an appointment is the best way to ensure you don't miss out.

Sales office is open by appointment only with Gainsborough DDM from Monday to Friday, 10:00am to 5:00pm.

Lorem ipsum dolor sit amet, consectetur adipiscing elit. Aenean a dapibus eros. Maecenas fringilla felis non risus tempor vulputate. Curabitur finibus feugiat tristique. Nulla scelerisque pretium congue. Quisque sit amet dui sed ante cursus malesuada. Phasellus sollicitudin lacus a sem commodo rutrum. Mauris rhoncus, nulla vitae consectetur aliquet, nulla leo blandit augue, vitae congue dolor metus ut massa. Nam vel nisi mollis, bibendum augue id, iaculis sapien. Etiam at elit et quam sodales consequat.

Homes for sale at TUDOR REACH

There are no other homes available at this development.

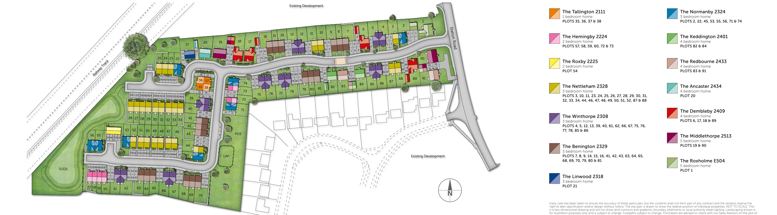
Site map

Hover to zoom

Site map
Site map

Living in Kirton in Lindsey

We are excited to announce that Tudor Reach is now fully reserved! Thank you to all our new homeowners who have chosen to make this development their home.

Tudor Reach, a charming development in the historic town of Kirton-in-Lindsey, Lincolnshire! Designed for a range of buyers, from first-time homeowners to families and remote workers, these homes offer the perfect blend of peaceful countryside living and modern convenience.

Located partially on Lincoln Cliff, the development offers scenic views and a rich historical atmosphere. Kirton-in-Lindsey boasts a vibrant high street with independent shops like a butcher, bakery, beauty salons, and a sweet shop, alongside pubs, cafés, and a garden centre. Local amenities include a post office for banking services, supermarkets, takeaways, and leisure options like the Trent Valley Gliding Club.

For further shopping and dining, Scunthorpe is only 10 miles away and offers a variety of independent and chain restaurants as well as two shopping centres. With close proximity to the A15 and M180, Tudor Reach provides easy access to major destinations like Lincoln, Peterborough, Scunthorpe, and Hull, making it ideal for commuters and families seeking a balance of rural tranquility and modern living.

Take a look at our buying options for more details on how to secure your Allison home. Alternatively, you can contact Allison Homes here.

The town has a regular bus service, providing connections between Lincoln and Scunthorpe, and allowing easy access to surrounding areas. Nearby, is a handy railway station also running services every Saturday between Sheffield and Cleethorpes.

Despite being a small town, Kirton in Lindsey has its own primary and secondary schools close by. Both Kirton in Lindsey Primary School and Huntcliff Comprehensive School can be reached within walking distance, making it ideal for parents living in the town.

Take a look at our buying options for more details on how to secure your own Tudor Reach home. Alternatively, you can contact Allison Homes here.

What's nearby within 10 miles

Please note: you may have to zoom in/out to see the icons on the map

Kirton Lindsey

Train Station

Dee Kay Dental

Dentist

The Stables

Restaurant

Kingston Pharmacies

Pharmacy

Bottesford Junior School

School

Cambridge Avenue Medical Centre

Doctor's Surgery

Brigg (BGG)

Train Station

Bupa Dental Care Brigg

Dentist

Medivet 24 Hour Ashby

Veterinary Practice

Londis

Supermarket

Peveril Avenue

Bus Stop

Glennys Bar

Bar

Scunthorpe

Train Station

The Oswald Road Medical Centre

Doctor's Surgery

Hospital Main Entrance

Bus Stop

Colosseo

Restaurant

Lola's

Bar

Smiths Convenience Store

Convenience Store

Premier - Wells Street Convenience Store

Convenience Store

Sainsbury's

Supermarket

Kings Super Market

Supermarket

JET

Petrol Station

ESSO EG PARKSIDE

Petrol Station

Berkeley Primary School

School

Scunny Mini Market, Best-one

Convenience Store

The Forum Dental Studio

Dentist

The Co-operative Pharmacy

Pharmacy

Parish Church C OF E Primary School

School

Boots

Pharmacy

Dr K Jacobs - Caskgate Street Surgery

Doctor's Surgery

Thai I am takeaway

Restaurant

Bus Shelter

Bus Stop

Pinfold House Veterinary Clinic - Misterton

Veterinary Practice

Pinfold House Veterinary Surgery

Veterinary Practice

Orgullo Wine Bar and Coffee House

Bar

View available homes